In the bustling hub of Boston, MA, commercial projects require more than pipes and fittings. They demand precision, safety and innovation. That’s where design-build commercial plumbing services benefit you. This approach unites design and construction under one roof, ensuring efficiency, cost savings and a higher standard of quality for complex systems like medical gases, process piping and more.
Streamline Plumbing With a Unified Approach
Design-build commercial plumbing eliminates the disconnect between architects, engineers, and contractors by combining all services into a single contract. According to the Design-Build Institute of America, this method delivers projects up to 102% faster and 6% cheaper than traditional methods. For Boston businesses in healthcare, research or manufacturing, this means plumbing systems, like medical gas distribution or pH neutralization, are designed and executed with precision from day one.
Welding and Process Piping Expertise
At Sagamore, welding and process piping are at the heart of our design-build commercial plumbing services. From stainless steel lines for labs to chemical-resistant piping for industrial facilities, our team ensures every joint is secure and every weld meets rigorous safety standards. By managing both design and installation, we eliminate costly rework and keep your project flowing smoothly.
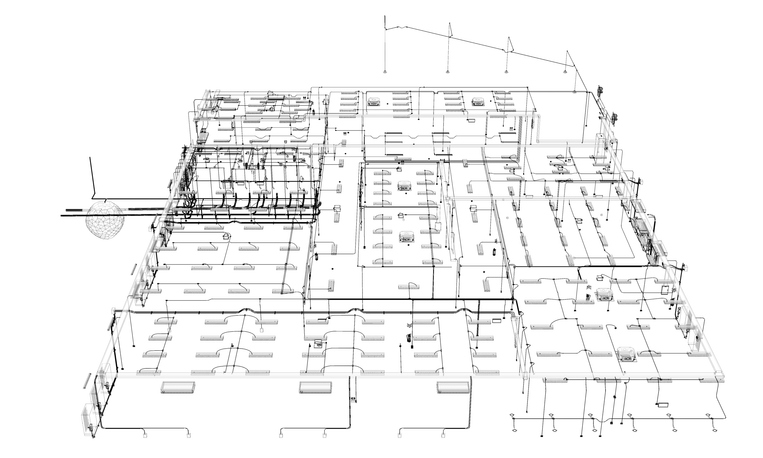
Leveraging 3D CAD for Smarter Plumbing Solutions
Modern design-build plumbing thrives on technology. Using advanced 3D CAD modeling, Sagamore visualizes and tests every component before construction begins. This proactive approach identifies potential conflicts early and maximizes efficiency in space-constrained Boston buildings. Here are six critical advantages of using 3D CAD in commercial plumbing projects:
- Accurate visualization of complex systems.
- Early clash detection between plumbing and other trades.
- Improved cost forecasting and budgeting.
- Streamlined communication among stakeholders.
- Faster project approvals and permitting.
- Higher installation accuracy on-site.
Meeting the Demands of Specialized Systems
Whether it’s medical and lab gases for hospitals, pH neutralization systems for research labs, or high-purity process piping for biotech, Sagamore delivers design-build plumbing tailored to Boston’s most demanding industries. Our expertise ensures safety, compliance and performance without compromise. With every project, we create systems designed not just to function but to fuel innovation.
Ready to bring Boston-strong precision and efficiency to your next commercial plumbing project? Contact Sagamore today and discover how our design-build approach can turn your vision into reality without draining your budget.
Image provided by iStock





